Las columnas de acero son materiales de construcción esenciales para las estructuras de cualquier tipo. Su posición es vertical y su función es soportar las cargas de la estructura para trasladarlas a los cimientos y al suelo. Además, las columnas son soportes verticales alargados, su forma suele ser circular y técnicamente las formas cuadradas se denominan pilares.. El proceso constructivo de las columnas en la construcción depende del tipo de material elegido para las mismas. En el caso de utilizar perfiles de acero estos serán prefabricados, por lo que su proceso constructivo ocurre en otro sitio y en la obra solo hay que realizar cualquier adaptación que haga falta para instalar.. Lo mismo sucede con las nuevas columnas de madera laminada, cuyo uso.

Vigas y Columnas Presentes en cualquier sistema constructivo

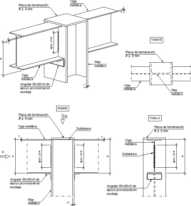
Estructuras Uno AceroSecciones Compuestas y detalles constructivos

Estructuras Uno AceroSecciones Compuestas y detalles constructivos

Estructuras Uno AceroSecciones Compuestas y detalles constructivos

Planos de Detalle columna, en Varios Detalles constructivos en PlanosPara

Columnas en Construcción Consulta la Clasificación Completa

Pin en technical details

Estructuras Uno AceroSecciones Compuestas y detalles constructivos Detalles constructivos

Columna compuesta madera Architecture drawing, Architecture blueprints, Architecture drawings

Detalles Constructivos Infografias Detalles Constructivos Sistemas Constructivos Techos De

Planos de Detalles de columnas en DWG AUTOCAD, Hormigón armado Detalles constructivos en

Estructuras Uno AceroSecciones Compuestas y detalles constructivos

Planos Constructivos De Cimentacion

columnas

SISTEMAS CONSTRUCTIVOS TIPOS DE COLUMNAS

Detalles Constructivos I Detalles constructivos, Constructivo, Construccion de edificios

columnas

columnas

Tipos de columnas, Columnas arquitectura, Columnas

SISTEMAS CONSTRUCTIVOS TIPOS DE COLUMNAS
Una vez comentada la clasificación de las columnas en construcción y los diferentes tipos que se pueden encontrar de este elemento, te explicaremos los usos que se le pueden dar a estos elementos estructurales.. Las columnas de construcción se utilizan principalmente para darle soporte a las estructuras donde serán instaladas, ya que deberán cargar el peso de otros elementos, como los.. Las columnas de concreto son elementos útiles en la construcción de una casa, cuya función principal consiste en transmitir las cargas de trabajo hacia la cimentación.. Estos elementos trabajan en flexión y compresión para brindar soporte a la vivienda. Las columnas pueden ser largas, intermedias o postes cortos. Cumplen la función de soporte de las estructuras superiores de la casa, a.