窯業系サイディングと標準施工 第4版. 全体をダウンロード」または「この部分をダウンロード」をクリックしてPDFを表示します。. 表示されたPDF画面上で、マウスの右ボタンクリックで表示されるメニューから「名前を付けてページを保存」を選択してPDF.. 窯業系サイディング/木造・横張り/通気金具留め施工 参考納まり図 【タッチアップレス工法】 100以上 100以上 10程度 10程度 50 スペーサー10 スペーサー10 留め金具(下端切断加工用) シーリング 両面防水テープ 防水紙 専用ビス

土台水切レス ディテール詳細 建築設計研究所

サイディングの外壁通気工法について|コラム一覧|コラム詳細

木造住宅の壁に使われてる外張り工法+窯業系サイディング
タイガーモエンEXB2/軸組工法吉野石膏

外壁通気工法って何

サイディング直貼り工法 株式会社 長谷川塗装工業

推奨納まり図 一般社団法人住まいの屋根換気壁通気研究会【公式サイト】

【知って損なし】サイディングは張り方で費用や見た目が変わる!|リフォームするなら【リフォームガイド】

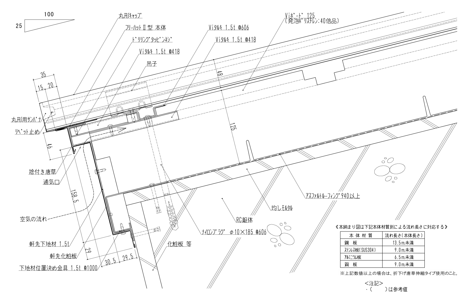
システムVi工法|屋根の換気外断熱|金属屋根のカナメ

窯業系サイディング 施工高さ(最大)31m|外壁材・屋根材・雨といのケイミュー

アイジーサイディング 木造下地/軸組工法/防火構造|防耐火認定図書|専門業者様向け資料|アイジー工業株式会社

これらは、次の様に空気が流れています。

木造住宅の壁に使われてる外張り工法+窯業系サイディング

推奨納まり図 一般社団法人住まいの屋根換気壁通気研究会【公式サイト】

外壁通気構法 窯業系サイディングの標準施工

アイジーサイディング 木造下地/軸組工法/準防火構造|防耐火認定図書|専門業者様向け資料|アイジー工業株式会社

推奨納まり図 一般社団法人住まいの屋根換気壁通気研究会【公式サイト】

木造住宅の壁に使われている充填工法+窯業系サイディング

外壁通気工法の家 株式会社倉田工務店株式会社倉田工務店 長野県駒ヶ根市 幸せとゆとりの家造り|クラタホーム

以下に、その入り口と出口を示します。
モエン標準施工法の鉄骨造通気金具工法の施工方法をご紹介しています。 動画を見る 金属製外壁材 センターサイディング 標準施工法. 納まり図(通気金具留め工法) 181 ~ 181 カタログビューで見る マイバインダーに追加. 納まり図(2mm金具留め工法) 193 ~ 193 カタログビューで見る マイバインダーに追加 ダウンロード ひさし・水切り 194 ~ 201 カタログビューで.